流量慎點!內附效果圖!廣西辦公室裝修區域規劃總結!
想做出適合自家公司的裝修效果?那你真的了解自己的公司嗎?需要強調工作區域的技術型公司卻把接待區、會議室搞得花里胡哨?應該以與客戶面談的銷售型公司卻擁有高端大氣的工作區域?主次顛倒、揚短避長?廣西辦公室裝修區域規劃總結來啦!流量黨慎點哦!內附高清效果圖!
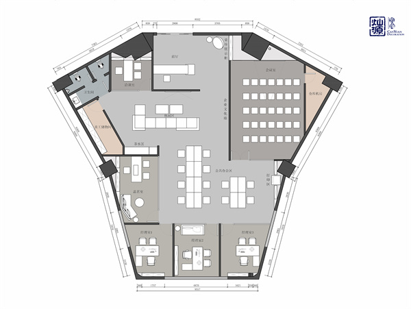
一、劃分比例
廣西辦公室裝修區域規劃總結要點:劃分比例。按照公司業務性質與成交方式,暫且將其分為需要接待客戶面談成交的銷售型公司與主攻技術賣點的技術型公司,根據其工作重心不同,前者辦公空間劃分比例一般為:40%的辦公區域+30-40%的會議接待區+5%的前臺區域+5%的休閑區+10-15%的獨立辦公區。后者比例為:50-60%的辦公區域+20%的會議接待區+5%的前臺部分+5%的休閑區+10-20%的獨立辦公室。

二、分區詳解+效果圖
1.前臺
廣西辦公室裝修區域規劃總結之前臺部分:作為一家公司的“門面擔當”與對外形象的展示平臺,前臺兼具著美觀與功能性的重大責任。一般來說,我們會規劃大致5-20平左右的空間用來做前臺布置,主要包含:背景墻、公司LOGO、前臺造型桌、量身定制的墻體文化等,求穩的風格可選擇簡單大方的款式,而喜歡創新的新型行業公司可能更喜歡開放式前臺哦。

2.會議接待區
廣西辦公室裝修區域規劃總結之會議接待區:簡單大方、突出重心,是會議室裝修布局的主調,作為既可以用來內部開會,也可以對外商談接洽的功能區,“畫蛇添足”的事情就要做。
3.獨立辦公區
廣西辦公室裝修區域規劃總結之獨立辦公區:根據公司領導及高層數量,在設計初期就要決定好獨立辦公區數量及位置,在整體公司裝修風格的基礎上,可根據功能性質決定內部裝修的特色與亮點,注重側重。

4.辦公區域
廣西辦公室裝修區域規劃總結之辦公區域:“光桿司令?”不可能!那員工的“工位布置”必須上心,需要溝通多的行業性質就安排共享式長桌工位,想要保留些許隱私性的公司,簡單的書架式隔斷,好看又實用!
5.休閑區
廣西辦公室裝修區域規劃總結之休閑區:想要長足發展,人性化關懷不能少,必備休閑區安排上!簡單茶水間也行,舒適沙發休閑區也可,安排健身器材、娛樂項目的休閑區更是可上加可,你們喜歡哪種呢?

今天的廣西辦公室裝修區域規劃總結就到這里啦!夠充分嗎?不夠的話,歡迎來電咨詢哦!記住我們的名字:廣西燦源裝飾設計工程有限公司!一家專注工裝多年,具備相關建筑裝修裝飾二級資質,承接創意設計+落地施工+軟裝配套+墻體文化+門禁系統等多個裝修環節流程的一站式廣西辦公室裝修公司!實力承諾:效果圖=實景圖,預算即結算!精算成本省20%!你不心動?!
本文地址:http://m.910579.com/index-articleshow-id-3305-catid-36.html




